Kính gửi Mọi người trong diễn đàn em có một việc gấp cầu cứu anh mong anh giúp đỡ em với:
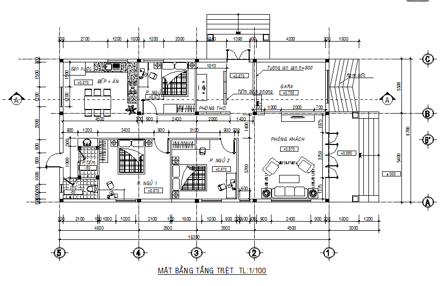
Theo sơ đồ cũ em có sữa lại mở một đường luồng phía trước bàn thờ như hình kèm theo. Phía bàn thờ làm một bình phong gỗ chắn có thể di chuyển qua lại. Nhưng gặp một vấn đề là đường luồng lại thẳng vào phòng ngủ vợ chồng. Xin hỏi mọi người như vậy có kiêng không. nếu kiêng thì em chuyển phòng vợ chồng em về phòng 1 để chuyển cửa phòng 2 về phía sau có được không.(vì phòng vợ chồng, em vợ đông tứ chồng tây tứ theo tư vấn của anh là cung hợp chồng hướng hợp vợ nên không thể mở cửa phòng về phía sau được)
Rất cám ơn mọi người.
Nhờ Mọi người trong diễn đàn giúp đỡ tôi trước lúc đào móng
Nội qui chuyên mục
Đây là chuyên mục dành cho việc xem phong thủy. Các bài mang tính trao đổi học thuật xin vui lòng đăng trong mục Kiến thức Phong thủy.
Các bài không liên quan sẽ bị chuyển khỏi chuyên mục này.
Đây là chuyên mục dành cho việc xem phong thủy. Các bài mang tính trao đổi học thuật xin vui lòng đăng trong mục Kiến thức Phong thủy.
Các bài không liên quan sẽ bị chuyển khỏi chuyên mục này.
-
tranthanhhaivd
- Mới gia nhập

- Bài viết: 16
- Tham gia: 10:39, 18/08/10
Đang trực tuyến
Đang xem chuyên mục này: Claude [Bot] và 3 khách.