Xin giúp em hóa giải hướng nhà phạm Thiếu vong với ạ !

Hỏi đáp, tư vấn về phong thủy, địa lý
Nội qui chuyên mục
Đây là chuyên mục dành cho việc xem phong thủy. Các bài mang tính trao đổi học thuật xin vui lòng đăng trong mục Kiến thức Phong thủy.
Các bài không liên quan sẽ bị chuyển khỏi chuyên mục này.
Chia sẻ
Hình đại diện của thành viên
Anha
Nhất đẳng
Nhất đẳng
Bài viết: 195
Tham gia: 15:42, 10/03/10

Xin giúp em hóa giải hướng nhà phạm Thiếu vong với ạ !

Gửi bài gửi bởi Anha »

Em mới dọn đến ở tại 1 căn nhà cấp 4 được hơn 2 tuần.
Nhà này nằm sau lưng một ngôi chùa, trước mắt nhà có 1 khu nuôi gà, chim bồ câu của một cô - bạn của chủ nhà.
Đối diện với cửa sổ nhà em là cây rất to nằm trong khu này.
Suốt thời gian ở nhà này, đêm nào em cũng nằm mơ rất nhiều chuyện mà em là nhân vật chính trong các giấc mơ đó, toàn là chuyện liên quan đến công việc rồi nhiều chuyện linh tinh khác. Chưa hôm nào em ngủ ngon mà ko mơ mộng gì, toàn ngủ chập chờn và có cảm giác ko yên tâm, cứ lo lắng điều gì đó, sáng dậy thì thấy người nhức mỏi, mệt lắm áh.
Em có mua la bàn về kiểm tra thì thấy hướng cửa bị rơi vào hướng Thiếu vong như thế này ạ :
Hình ảnh

và hướng bếp thì rơi vào Xuơng dâm :
Hình ảnh

Chứ cứ kéo dài tình trạng này em bị stress và bắt đầu thấy sợ mỗi khi ở nhà 1 mình lắm :(( :((
Mong các anh chị chú bác hướng dẫn giúp em cách hóa giải với ạ.

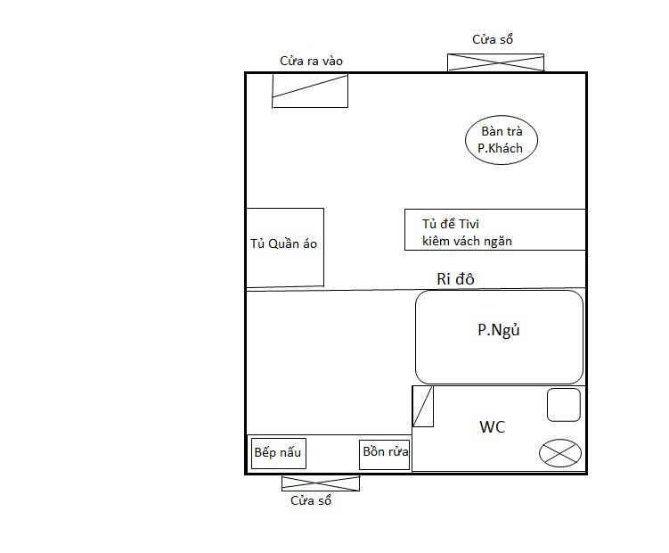
Đây là sơ đồ nhà : hiện nay chưa mang được tủ để ti vi kiêm chức năng làm vách ngăn giữa p.khách và p.ngủ về được nên em dùng ri đô để che chỗ ngủ khi ko dùng đến.
Tập tin đính kèm
So do nha.jpg

Hình đại diện của thành viên
Anha
Nhất đẳng
Nhất đẳng
Bài viết: 195
Tham gia: 15:42, 10/03/10

TL: Xin giúp em hóa giải hướng nhà phạm Thiếu vong với ạ !

Gửi bài gửi bởi Anha »

Ko ai muốn giúp em hết ạ :( ?

Hình đại diện của thành viên
Thiện Minh
Hội viên CLB
Hội viên CLB
Bài viết: 1654
Tham gia: 08:19, 04/07/10
Đến từ: Tp HCM 0936722711

TL: Xin giúp em hóa giải nhà phạm Thiếu vong ạ !

Gửi bài gửi bởi Thiện Minh »

Bổ sung hình thứ 3 đi bạn @Anha ! , hình 1 hướng nhà dần thân 245 độ , hình 2 hướng bếp 69 độ , hình 3 lạng dựng đứng khó xem thật , không chú thích tâm hướng rỏ ràng . Chưa kể ngoại quan ngôi chùa ở đâu ? Bao nhiêu độ so với căn nhà ? Cái cây bao nhiêu độ so với căn nhà ? Trong nhà vẻ thiếu đường dẩn thủy ? Thiếu đường xã thủy ? Phía ngoài vẻ thiếu con lộ ? Nhà này được xây dựng trong năm nào ?

Hình đại diện của thành viên
Anha
Nhất đẳng
Nhất đẳng
Bài viết: 195
Tham gia: 15:42, 10/03/10

TL: Xin giúp em hóa giải hướng nhà phạm Thiếu vong với ạ !

Gửi bài gửi bởi Anha »

Em theo hướng dẫn sử dụng la bàn thì thấy Trung cung rơi vào đúng cuối đuôi giường ngủ và từ đó em đo hướng nhà và hướng bếp.
Do là nhà 1 phòng nên mở cửa ra là nhìn thẳng vào bếp luôn ạ.
Đường dẫn nước vào nhà có lẽ nằm sau lưng nhà dẫn vào nhà tắm và bồn rửa cạnh bếp. Vì nhà khu này đều xây giống nhau và cùng hướng với nhà em nên em đoán như thế.
Đường xả thủy có lẽ nằm dưới nền nhà và xả ra cống trước nhà.
Bên dưới đường ngõ ra vào các nhà chính là cống xả nước ra ngoài.
Phía trước cửa sổ có thấy 1 đường lạch nổi & gần nắp cống thoát nước chạy thẳng vuông góc với cửa sổ.
Cây thì chếch về bên trái nếu nhìn về phía cửa sổ và hướng đổ về phía chuống bồ câu khoảng 70-80 độ.
Nhà xây năm 2007, nằm trong một khu đất sau lưng một ngôi chùa khá lớn ở Gia Lâm, ngay bên dưới đường đê. Chùa hướng về phía mặt đương đê, quay lưng về phía toàn bộ khu đất em đang ở. Khu đất này có tường bao khá cao nên từ bên nhà ko nhìn thấy bất cứ mái đền, chùa phía trước cả.

Hình vẽ này em dựng theo mặt cắt ngang, nhìn từ trên xuống, em có bổ sung thêm một số chi tiết khu vực xung quanh rồi đấy ạ :
Tập tin đính kèm
So do nha.jpg

vucris
Nhất đẳng
Nhất đẳng
Bài viết: 104
Tham gia: 06:06, 29/03/10

TL: Xin giúp em hóa giải hướng nhà phạm Thiếu vong với ạ !

Gửi bài gửi bởi vucris »

chào bạn và anh thienthai

Sorry anh thienthai tôi dã chen vào topic của anh nhưng vì muốn học hõi thêm về phong thuỷ huyền khong của anh cho nên vào dây góp ý cô bé này. Theo môn lầu ngọc bối kinh thì hướng nhà tại thiếu vong và cô ấy thường mộng mị cho nên tôi mới hứng thú dể học hỏi thêm từ anh bởi vì anh có nói
Nay trong quẻ có dậu kim huynh không vong gia Phi Xà , tình trạng là hào âm tịnh nên có thể có một cái gì đó vô hình (xin miễn nói thẳng) người thường không thể thấy và biết , âm thầm theo đương sự , chỉ trợ mà không hại , chỉ phù mà không phá . Vì tránh sự nhiễu loạn lòng người nên ThienThai này không bàn tới hào dậu kim huynh gia phi xà , không vong . Xin anh cho biết về sự huyền bí trên


Dể tôi bổ sung thêm cho cô bạn có nhiều diều thiều sót dể cho anh thiênthai luận giải dể dàng hơn
1/ bạn phải do chiều ngang của căn nhà là bao nhiêu mét hoặc feet và chiều dài dể lấy tâm của căn nhà
tấm hình trên tôi nghĩ bạn lấy tâm không trúng vì lấy sai sẽ ra 1 tinh bàn khác coi sẽ trật
2/ khi lấy số dộ của la bàn bạn phải dứng trước căn nhà và xem bao nhiêu dộ mới chính xác chứ không phải dứng trong căn nhà ( có rất nhiều cách tính do hướng nhà ) dây là cách dơn giản nhất dể tìm hướng nhà
Nếu làm dược như vậy thì anh thienthai sẽ coi cho bạn chính xác hơn và dể dàng cho anh ấy khi luân giải

Hình đại diện của thành viên
Anha
Nhất đẳng
Nhất đẳng
Bài viết: 195
Tham gia: 15:42, 10/03/10

TL: Xin giúp em hóa giải hướng nhà phạm Thiếu vong với ạ !

Gửi bài gửi bởi Anha »

vucris đã viết:chào bạn và anh thienthai

Dể tôi bổ sung thêm cho cô bạn có nhiều diều thiều sót dể cho anh thiênthai luận giải dể dàng hơn
1/ bạn phải do chiều ngang của căn nhà là bao nhiêu mét hoặc feet và chiều dài dể lấy tâm của căn nhà
tấm hình trên tôi nghĩ bạn lấy tâm không trúng vì lấy sai sẽ ra 1 tinh bàn khác coi sẽ trật
2/ khi lấy số dộ của la bàn bạn phải dứng trước căn nhà và xem bao nhiêu dộ mới chính xác chứ không phải dứng trong căn nhà ( có rất nhiều cách tính do hướng nhà ) dây là cách dơn giản nhất dể tìm hướng nhà
Nếu làm dược như vậy thì anh thienthai sẽ coi cho bạn chính xác hơn và dể dàng cho anh ấy khi luân giải
Cám ơn anh đã góp ý ạ, em xin bổ sung thêm thông tin anh đã cho biết :
- Chiều ngang nhà là 3,3m , chiều dài là 10m . Do đường nước ở chỗ lavabo chưa được tốt nên nước thường bịrò rỉ ở khu vực này, khiến tường của khu vực này bị ẩm thường xuyên.
- Nếu đứng trước căn nhà đo thì hướng nhà sẽ cùng hướng với bếp, gần hướng chính Đông, con số cụ thể thì tối nay em đo xong sẽ cung cấp sau ạ.
Cho em hỏi nếu đứng trước nhà thì đứng trước hay là đứng ở chính giữa cửa nhà để đo thì sẽ chính xác hơn ạ ?

vucris
Nhất đẳng
Nhất đẳng
Bài viết: 104
Tham gia: 06:06, 29/03/10

TL: Xin giúp em hóa giải hướng nhà phạm Thiếu vong với ạ !

Gửi bài gửi bởi vucris »

1/ bạn dứng song song với bức tường cửa truớc ngay chính giữa sau dó bước lên 1 mét dặt la bàn coi bao nhiêu dộ nhớ là khong nên gần vật kim loại vì kim la bàn sẽ nhảy không chính xác
ví dụ bức tường ngay cửa là 3m bạn lấy 1/2 là 1m5 dứng tai diểm này bước lên 1 mét hoăc 2 rồi dể la bàn coi bao nhiêu dộ. cách này là dơn giản nhất dễ cho người khổng học phong thuỷ, còn theo kiểu phong thuỷ của malaysia, thì do khác chung quy cũng gần giống nhau

Hình đại diện của thành viên
Anha
Nhất đẳng
Nhất đẳng
Bài viết: 195
Tham gia: 15:42, 10/03/10

TL: Xin giúp em hóa giải hướng nhà phạm Thiếu vong với ạ !

Gửi bài gửi bởi Anha »

Em đã đo lại hướng nhà theo hướng dẫn của anh/chị vucris thì đo được hướng nhà rơi vào khoảng 66-67 độ tính từ hướng Bắc, nhà nằm trong hướng Đông Bắc.
- Còn nếu đứng tại vị trí trung tâm của nhà đo được hướng cửa là 245độ , hướng bếp nấu ( nhìn theo hướng cửa sổ sau bếp) là khoảng 70độ tính từ bắc.

Ngoài ra còn một đặc điểm nữa là khu đất này khá ẩm dù ở nằm ở trên cao khoảng 50cm so với mặt đường sau lưng nhà nên có rất nhiều kiến, mỗi lần trời chuẩn bị mưa to là kiến kéo nhau theo đàn đen kịt vào các nhà luôn ạ.

Và em nghe nói là kiêng ko nên ngủ mà đầu hướng ra cửa ra vào có đúng ko ạ ? Vì nếu để tránh ko để đầu giường quay ra cửa thì em phải ngủ quay đầu về hướng nhà tắm, mà như vậy thì cũng ko tốt cho sức khỏe phải ko ạ ?

vucris
Nhất đẳng
Nhất đẳng
Bài viết: 104
Tham gia: 06:06, 29/03/10

TL: Xin giúp em hóa giải hướng nhà phạm Thiếu vong với ạ !

Gửi bài gửi bởi vucris »

chào anhna
theo như dộ số 67 mà em do không biết có trúng không! thì tinh bàn huyền không sẽ như sau:
S-V H toạ thân hướng dần
497-953-257
368-581-731
842-146-692

toi không phải là cao thủ phong thuỷ nhung vì không thấy ai giúp dành phải giúp cô em cho dù công lực chua giỏi nhưng cố gắng giúp dược gì hay cái nấy
1/ Nhà em phạm không vong là rất xấu nằm giữa 2 cung Dần và giáp nhẹ thì bệnh hoạn ốm dau, xui xẻo dủ thứ mọi việc không dược hanh thông
2/ Năm nay thái tuế tới cung dấn mà nhà em cũng huóng dần toa tại tam sát không bị hình nguc, tai nạn là rất may rồi
3/ Giường ngủ nằm ngay giữa nhà có sao 5-1 nhập trung cung là tât ách cung dễ bị óm dau bệnh tât cho nên em thường hay mông mị ngủ không ngon giấc sức khoẻ không tốt
4/ theo môn lầu kinh và bát trach nhà hướng quan quỷ toạ thiếu vong cộng thêm không vong nữa cho dù người mạng càn dược thiên y và diên niên ngũ hành tương sinh cho nên dỡ dược phần nào
Nói tóm lại là căn nhà cực kì xấu nhà phạm không vong thường không có cách giải ( dọn di hoặc bán) chì là ý kiến riêng của tôi. Em nên hỏi thêm các cao thủ trong diễn dàn anh thiên thai, thầy tuệ anh nguyencuong giúp thêm cho em ý kiến
Dầu giường không nên dể sát vách với cầu tiêu kẹt quá thì quay dầu giường cùng vách hông nhà thuộc hướng nam có sơn tinh 9 tốt hơn, không nên dể giường nằm giũa nhà vì là trung cung có ngũ hoàng chủ về bệnh hoạn
Vài dòng dể em hiểu về phong thuỷ nhà của minh dể biết mà lo liệu
Chúc em may mắn

P/s các cao nhân phong thuỷ ơi! làm phước giúp dùm cô bé này

Hình đại diện của thành viên
Anha
Nhất đẳng
Nhất đẳng
Bài viết: 195
Tham gia: 15:42, 10/03/10

TL: Xin giúp em hóa giải hướng nhà phạm Thiếu vong với ạ !

Gửi bài gửi bởi Anha »

Em cám ơn anh đã có lời ạ.
Bình thường em có sức khỏe rất tốt, từ nhỏ đến giờ rất ít khi đau ốm và cũng chưa bao giờ lại nằm mơ liên tục hàng đêm như lúc dọn đến đây ở nên em cảm thấy nhà có vấn đề dù lúc dọn đến em cũng đã có thắp hương xin thần linh cho đến ở rồi.
Với lại chủ nhà hình như lúc ở đây ko có thắp hương thờ cúng gì hay sao ấy ạ vì em thấy có một bát hương không & một gói tro dùng để bốc bát hương vẫn còn để nguyên trên nóc tủ áo khi em dọn đến cũng ko thấy có bùa trấn trạch giống như nhà bạn em ở gần cửa ngõ ra vào khu này.
Bạn em từ khi dọn đến đây ở thì thấy tốt hơn chỗ cũ : ở được 1-2 tháng thì có em bé dù lúc trước phải đi khám chữa khá lâu rồi, cv thì thuận lợi và có nhiều lộc... nên khi dọn qua đây em đã định ở lâu dài đến khi nào chống lầy hoặc chủ nhà về ( chủ nhà đi học xa 3 năm ạ ).
Chứ tài chính của em có hạn, muốn chuyển đi thì cũng phải từ từ mới chuyển được.

Vậy bây giờ đã biết bệnh của nhà rồi, ko lẽ ko có cách nào chữa bệnh được ạ ?
Các thầy, các cao nhân nếu có ghé qua topic thì xin chỉ dẫn giúp em với ạ.

Đang trực tuyến

Đang xem chuyên mục này: Claude [Bot]6 khách.